











| 物件No. | m1108 |
|---|---|
| 物件名 | 西小山医療ビル計画 |
| 所在地 | 東京都目黒区原町1-15-1 |
| 最寄駅 / 駅徒歩 | 東急目黒線「西小山」徒歩3分 |
| 竣工 | 2027年夏(予定) |
| 開業募集科目 | 皮膚科 | 心療内科 | 内科 | その他 | 小児科 | 脳神経外科 | 整形外科 | 婦人科 | 精神科 | 産婦人科 | 眼科 | 耳鼻咽喉科 | 泌尿器科 | |
| 施設の特徴 | 駅近く | 1階物件 | |
| 階数(区画) | 面積 | 賃料 | 共益費 | 引き渡し時期 |
|---|---|---|---|---|
| 1階(A) | 28.12坪 |
649,572円 | 賃料に含む | 2027年以降(予定) |
| 2階(A) | 33.03坪 | 690,327円 | 賃料に含む | 2027年以降(予定) |
| 2階(B) | 33.03坪 | 690,327円 | 賃料に含む | 2027年以降(予定) |
| 3階(A) | 33.03坪 | 653,994円 | 賃料に含む | 2027年以降(予定) |
| 3階(B) | 33.03坪 | 653,994円 | 賃料に含む | 2027年以降(予定) |
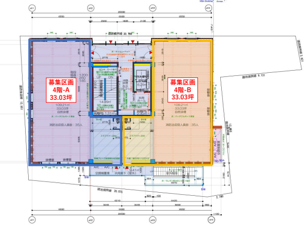
| 4階(A) | 33.03坪 | 617,661円 | 賃料に含む |
2027年以降(予定) |
| 4階(B) | 33.03坪 | 617,661円 | 賃料に含む | 2027年以降(予定) |
| 備考 | 1階:調剤薬局(予定) |
|---|---|
| 設備 | エレベーター設置予定 各区画内トイレ設置予定 |
オーナー様の希望により非公開にしている物件も多数ございます。お探しの条件がございましたら、まずはご相談ください。
クリニック物件を専門に扱う&Clinicだからこそできるご提案をいたします。WEBかお電話にてお気軽にお問い合わせください。
お問い合わせ内容の確認後、担当よりご連絡させていただきます。