









| 物件No. | t910 |
|---|---|
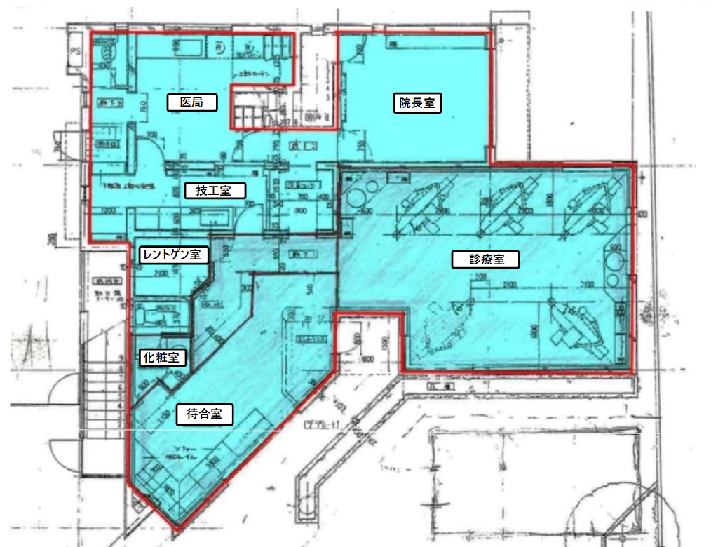
| 物件名 | (仮称)上北沢テナント |
| 所在地 | 東京都世田谷区上北沢4-17-11 |
| 最寄駅 / 駅徒歩 | 京王線「上北沢」徒歩2分 |
| 竣工 | 1987年 |
| 開業募集科目 | 美容外科 | 内科 | その他 | 小児科 | 脳神経外科 | 産婦人科 | 婦人科 | 眼科 | 歯科 | 外科 | 耳鼻咽喉科 | 形成外科 | 泌尿器科 | 皮膚科 | |
| 施設の特徴 | 1階物件 | 駅近く | 居抜き物件 | 駐車場付き | |
| 階数(区画) | 面積 | 賃料 | 共益費 | 引き渡し時期 |
|---|---|---|---|---|
| 1階 | 36.60坪 | 849,200円 | 賃料に含む | 相談 |
| 引渡し | 居抜きの場合、譲渡費用なし スケルトン渡し相談可能 |
|---|---|
| 設備 | 駐車場2台 |
オーナー様の希望により非公開にしている物件も多数ございます。お探しの条件がございましたら、まずはご相談ください。
クリニック物件を専門に扱う&Clinicだからこそできるご提案をいたします。WEBかお電話にてお気軽にお問い合わせください。
お問い合わせ内容の確認後、担当よりご連絡させていただきます。