





| 物件No. | mk971 |
|---|---|
| 物件名 | えびなメディカルテラス |
| 所在地 | 神奈川県海老名市中央1-7-21 |
| 最寄駅 / 駅徒歩 | JR相鉄線・小田急小田原線・相鉄本線「海老名」徒歩4分 |
| 竣工 | 2026年5月(予定) |
| 開業募集科目 | 内科 | 心療内科 | 精神科 | 小児科 | 外科 | 整形外科 | 形成外科 | 美容外科 | 脳神経外科 | 産婦人科 | 眼科 | 耳鼻咽喉科 | リバビリテーション科 | 皮膚科 | 婦人科 | 泌尿器科 | 歯科 | 人工透析 | その他 | |
| 施設の特徴 | 1階物件 | 駐車場付き | |
| 階数(区画) | 面積 | 賃料 | 共益費 | 引き渡し時期 |
|---|---|---|---|---|
| 1階(A) | 17.57坪 | お問合せください | 賃料に含む | お問合せください |
| 1階(B) | 38.10坪 | お問合せください | 賃料に含む | お問合せください |
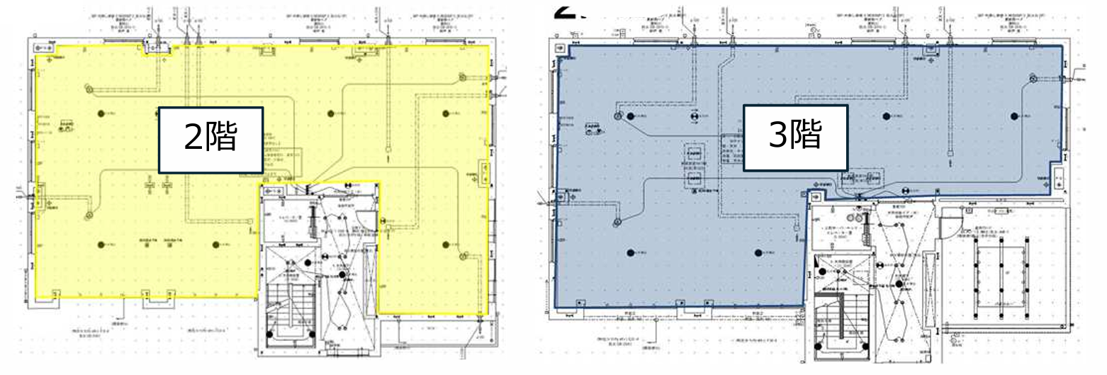
| 2階 | 59.10坪 | お問合せください | 賃料に含む | お問合せください |
| 3階 | 51.50坪 | お問合せください | 賃料に含む | お問合せください |
| 引渡し | スケルトン渡し |
|---|
オーナー様の希望により非公開にしている物件も多数ございます。お探しの条件がございましたら、まずはご相談ください。
クリニック物件を専門に扱う&Clinicだからこそできるご提案をいたします。WEBかお電話にてお気軽にお問い合わせください。
お問い合わせ内容の確認後、担当よりご連絡させていただきます。