







| 物件No. | mk870 |
|---|---|
| 物件名 | LILYビル |
| 所在地 | 神奈川県横浜市中区山下町106-33 |
| 最寄駅 / 駅徒歩 | みなとみらい線「元町・中華街」徒歩4分 |
| 竣工 | 2021年3月 |
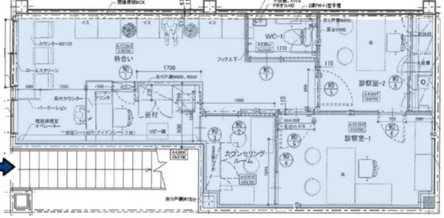
| 開業募集科目 | 内科 | 心療内科 | その他 | 精神科 | |
| 施設の特徴 | 継承物件 | 居抜き物件 | |
| 階数(区画) | 面積 | 賃料 | 共益費 | 引き渡し時期 |
|---|---|---|---|---|
| 1階 | 約14.67坪 | お問合せください | お問合せください | 即日 |
| 2階 | 約14.43坪 | お問合せください | お問合せください | 即日 |
| 備考 | 1階:調剤薬局 |
|---|---|
| 引渡し | 1階:心療内科居抜き 2階:スケルトン渡し |
オーナー様の希望により非公開にしている物件も多数ございます。お探しの条件がございましたら、まずはご相談ください。
クリニック物件を専門に扱う&Clinicだからこそできるご提案をいたします。WEBかお電話にてお気軽にお問い合わせください。
お問い合わせ内容の確認後、担当よりご連絡させていただきます。