





| 物件No. | m992 |
|---|---|
| 物件名 | 池袋ITタワーTOKYO |
| 所在地 | 東京都豊島区西池袋3-28-4 |
| 最寄駅 / 駅徒歩 | JR山手線「池袋」徒歩1分 |
| 竣工 | 2025年12月(予定) |
| 開業募集科目 | 内科 | 小児科 | 精神科 | 脳神経外科 | 外科 | 整形外科 | リバビリテーション科 | 産婦人科 | 形成外科 | 眼科 | 耳鼻咽喉科 | 心療内科 | その他 | |
| 施設の特徴 | 駅近く | 商業施設内 | |
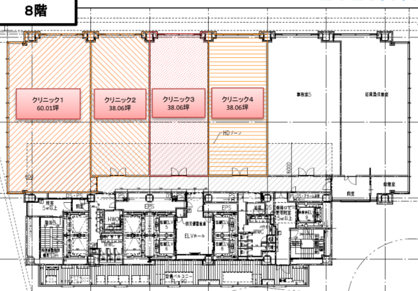
| 階数(区画) | 面積 | 賃料 | 共益費 | 引き渡し時期 |
|---|---|---|---|---|
| 8階① | 60.01坪 | お問合せください | お問合せください | お問合せください |
| 8階② | 38.06坪 | お問合せください | お問合せください | お問合せください |
| 8階③ | 38.06坪 | お問合せください | お問合せください | お問合せください |
| 8階④ | 38.06坪 | お問合せください | お問合せください | お問合せください |
| 備考 | 地下1階:調剤薬局 |
|---|
オーナー様の希望により非公開にしている物件も多数ございます。お探しの条件がございましたら、まずはご相談ください。
クリニック物件を専門に扱う&Clinicだからこそできるご提案をいたします。WEBかお電話にてお気軽にお問い合わせください。
お問い合わせ内容の確認後、担当よりご連絡させていただきます。